AIROTEL Camping LE RAGUENES PLAGE 4 étoiles

AIROTEL Camping LE RAGUENES PLAGE 4 étoiles

Affiner votre recherche

Vacanciers
Ajouter les vacanciers
Adultes 13 ans et plus
Enfants De 3 à 12 ans
Bébés De 0 à 2 ans
Filtrer

Filtrer les résultats

{{filterSelected.length}}
Trier par : 
Adultes 13 ans et plus
Enfants De 3 à 12 ans
Bébés De 0 à 2 ans

{{compteurFiltreCategorie(index)}}
Disponibilité limitée
{{pctDispo}}
Etablissement très prisé
1 personnes l'ont réservé cette semaine
Prix en hausseRéservez avant que les prix augmentent

Les hébergements qui correspondent à votre sélection

Avec les dates du au

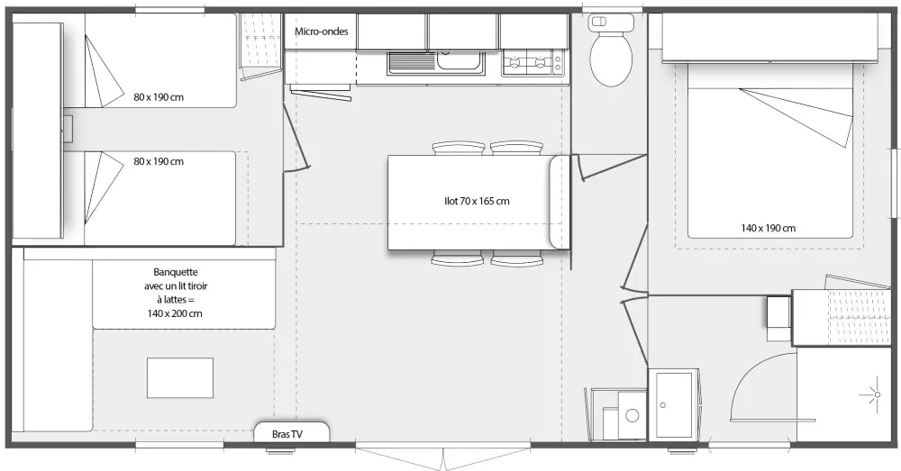
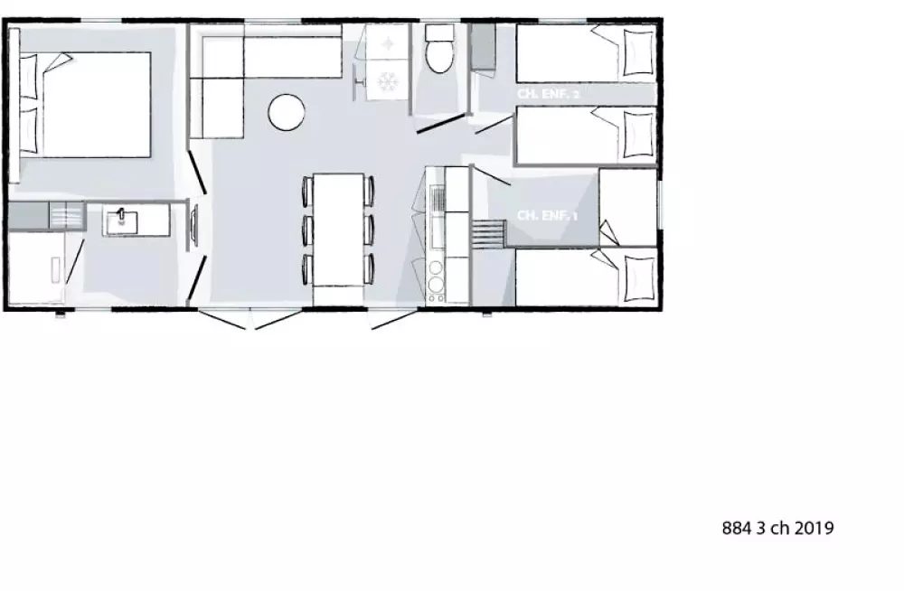
Détails de l’hébergement

-{{pourcentage}}% {{barrePrice}}€ {{finalPrice}}€/pers.
Cet hébergement est indisponible à vos dates. Essayez d’autres dates ou poursuivez votre recherche d’hébergement.

Une formule ski ?

Les plus du camping

  • 0.300 km
  • Piscine
  • Accès Wifi
  • Restaurant
  • Epicerie

Description du camping

Le camping est situé dans un cadre touristique, calme et reposant. C'est un parc boisé et fleuri par toutes sortes d'essences et d'oiseaux. Un chemin piétonnier et privé vous conduit directement sur la très grande plage de sable fin de Raguenez (à une distance de 300m). Cette plage, située en face du camping offre toute sécurité pour les enfants. La mer est propice à la pêche, ainsi qu'aux sports nautiques. Elle s'ouvre sur les îles Gléna, Groix, Verte et mouillages (sur demande) à la mairie.

*Au sein même du camping vous disposez des commerces suivants: bar, salon, plats cuisinés à emporter, alimentation générale, restaurant.
*Sauna(payant). Salle de jeux, salle de tv, terrain de jeux pour les enfants. terrain de sports(volley, ping-pong, basket). Animateur en haute saison.
* Wifi et borne internet.
* piscine chauffée avec balnéothérapie et pataugeoire ludique avec plage californienne et petit toboggan partant d'un îlot pour les enfants. Piscine couverte chauffée.
* machines à laver, sèche de linge, fer à repasser

Névez est une station littorale du Finistère Sud qui a su préserver ses paysages sauvages et son patrimoine typique.lieu idyllique pour se ressourcer, c'est la nature à l'état pur, la campagne en bord de mer.
Terrain de lumières et de contrastes où la force de la mer se marie à la douceur de la rivière 'l'Aven'. les paysages entre terre et mer, camaieux de verts et de bleus ont gardé l'empreinte des peintres et des tailleurs de pierres.
Le village de Raguenez offre la plus belle plage de la commune, ce n'est pas un hasard si les Névéziens ont baptisé le côté Est de la plage 'Tahiti'! Sable fin sur plusieurs kilomètres et eau turquoise. Face au petit port de Raguenez, l'île du même nom où se situait autrefois l'usine qui transformait le goémon en iode. Aujourd'hui privée, une servitude de passage vous permet cependant d'en faire le tour. attention, l'île n'est accessible que les 3 heures précédant ou succédant la marée basse. L'île verte se détache derrière l'île de Raguénez et au sud-ouest, vous pourrez apercevoir l'archipel des Glénan. Couchers de soleil superbes.

Prendre la sortie N°48 de la voie express N 165; direction 'Pont-Aven, Bannalec'.

Traversée de Pont-Aven, prendre la direction de Névez.

Arrivée au centre de Névez, prendre la direction de Raguenez

Le camping sur la gauche avant la presqu'île

Sur place & à proximité

Espace aquatique
  • Piscine : Piscine 1 : , , | Piscine 2 : spécial enfant / bébé, toboggan, pataugeoire, piscine pour enfants, , |
  • Piscine chauffée
Activités
  • Aire de jeux pour enfants : Zone de jeux pour enfants outdoor
  • Ping Pong
  • Salle de fitness
  • Salle de Jeux
Animations
  • Club enfants
  • Animations famille : soirées
  • Animations sportives
Bien être
  • Sauna
Services et équipements disponibles
  • Accès Wifi : Wifi collectif
  • Borne Internet
  • Epicerie
  • Laverie
  • Restaurant
  • Snack/bar
Localisation
  • Accès Plage : 0.300 km
  • Bord de mer
  • Proche commerce
Autres informations
  • Aire de vidange
  • Animaux admis
  • Caution (en supplement) : 200+70
  • Taxe de séjour (en supplément) : Tarifs et paiement sur place
  • Accès PMR

Avis clients

4.0/5 sur Avis vérifiés

Calculée à partir de 24 avis obtenus sur les 5 ans

Avis clients

Trier par

Aucun résultat pour «{{query}}».

Préparer la route des vacances

Adresse

15-19 rue des Iles à Raguenès

29920 NEVEZ

itinéraire
ACCES:

Depuis Rennes ou Nantes, direction Lorient,n N165 direction Quimper, sortie 48 vers Pont-Aven puis direction Port-Manech

Train : 4h15, gare de Quimper à 30 min
Train : 3h45, gare de Lorient à 30 min
Liaison vers la station en car, en taxi ou possibilité de location de voitures.

Avion : 1h00, aéroport de Quimper ou de Lorient à 30 min
Liaison vers la station en taxi ou possibilité de location de voitures.

Horaires de remise des clés :

16:30-20:00

depuis la France métropolitaine.
lundi au samedi de 9h30 à 19h30.