Maison de Vacances La Bresse 10

Maison de Vacances La Bresse 10

Affiner votre recherche

Vacanciers
Ajouter les vacanciers
Adultes 13 ans et plus
Enfants De 3 à 12 ans
Bébés De 0 à 2 ans
Filtrer

Filtrer les résultats

{{filterSelected.length}}
Trier par : 
Adultes 13 ans et plus
Enfants De 3 à 12 ans
Bébés De 0 à 2 ans

{{compteurFiltreCategorie(index)}}
Disponibilité limitée
{{pctDispo}}
Etablissement très prisé
0 personnes l'ont réservé cette semaine
Prix en hausseRéservez avant que les prix augmentent

Les hébergements qui correspondent à votre sélection

Avec les dates du au

Détails de l’hébergement

-{{pourcentage}}% {{barrePrice}}€ {{finalPrice}}€/pers.
Cet hébergement est indisponible à vos dates. Essayez d’autres dates ou poursuivez votre recherche d’hébergement.

Une formule ski ?

Les atouts de l'établissement

  • Accès Internet / WiFi

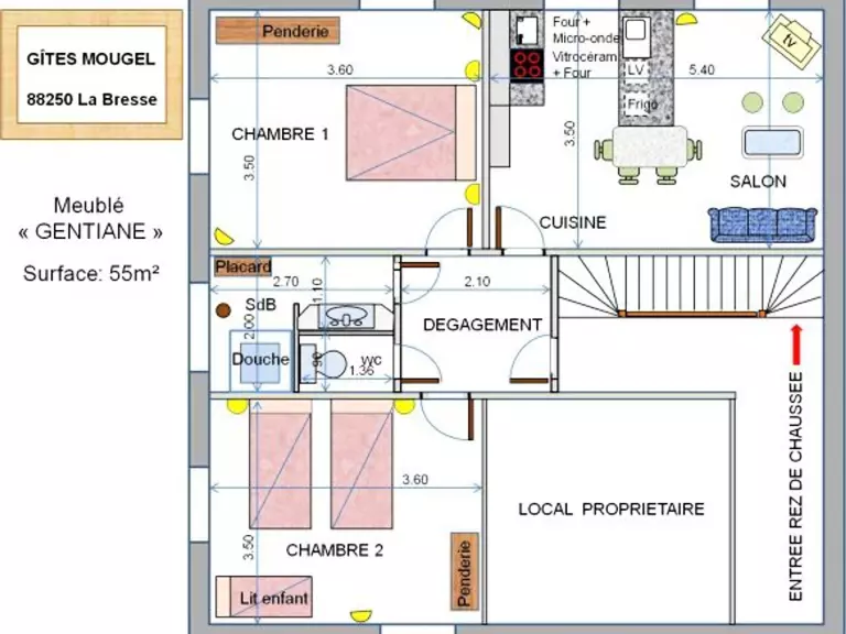
Description de l’établissement

Dans la Bresse : Du rond point au centre de la Bresse, prendre la direction de Munster. Ensuite continuez tout droit et passez devant plusieurs commerces (magasins de sport, boulangerie et Presse). A partir de ces magasins, vous prendrez la 3éme route sur votre gauche (chemin de Réchigoutte) une dizaine de mètres après un grand bâtiment dénommé (la Régie Municipale d'électricité). Dans le chemin de Réchigoutte, le gîte est la 3éme maison sur la gauche. C'est une maison avec deux balcons et une véranda sur une terrasse.

Sur place & à proximité

Services et équipements disponibles
  • Accès Internet / WiFi
  • Télévision
Hébergement
  • Animaux non Admis

Préparer la route des vacances

Adresse

88250 LA BRESSE

itinéraire

L’établissement vous communiquera l'adresse précise après votre réservation.

En voiture :
Paris (450 km), Strasbourg (120 km), Mulhouse (60 km), Nancy (120 km), Epinal (60km)
- De Paris :
Paris, Nancy, Epinal, Remiremont, La Bresse
- De Strasbourg :
Strasbourg, Colmar, Munster, La Bresse
- De Mulhouse :
Mulhouse, Thann, La Bresse

En train :
Gare de Remiremont (25 km)

En avion :
Aéroport d'Epinal/Mirecourt (90 km)
Aéroport de Mulhouse/Bâle (80 km)
Aéroport de Strasbourg (110 km)

Horaires de remise des clés :

17:00-01:00

depuis la France métropolitaine.
lundi au samedi de 9h30 à 19h30.